ARAOZ Y JUFRE al 300

u$s 138.000
Disponible Venta
5381513 ID Propiedad
0 m2 Superficie
0 Dormitorio
1 Baños

Descripción

JUFRE 300 EDIFICIO
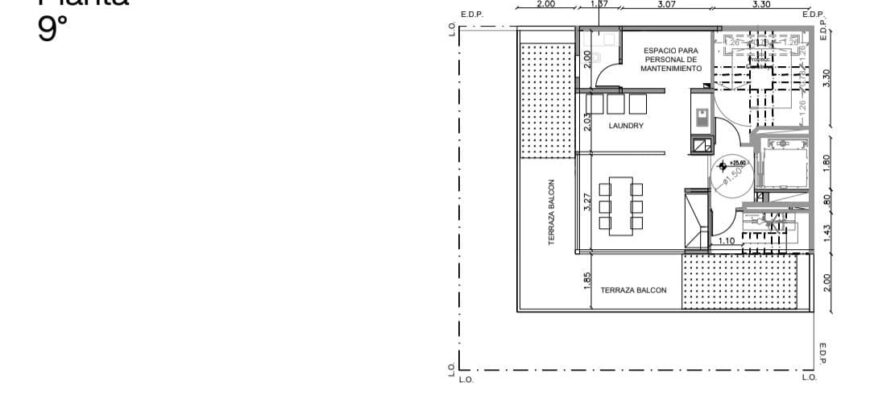
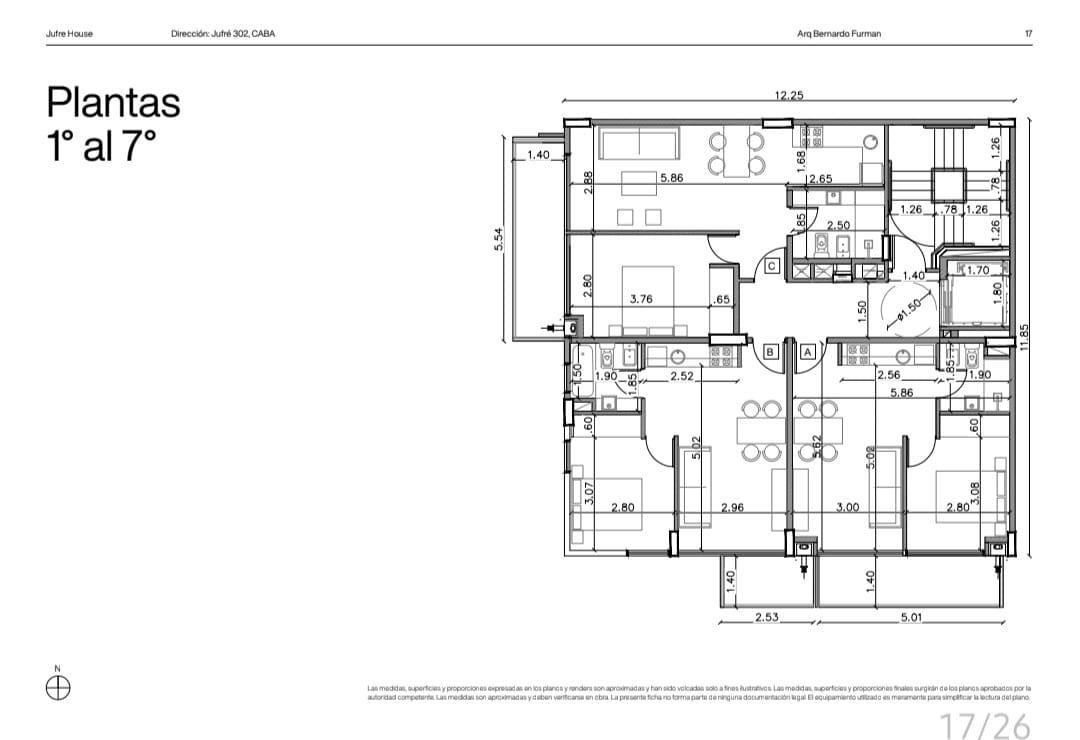
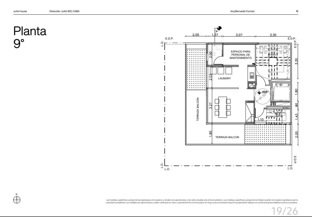
EL PRECIO DE ÈSTA PUBLICACIÒN CORRESPONDE A UNA DE LAS UNIDADES DE 2 AMBIENTES CON BALCÒN UBICADAS EN 1er. PISO. HASTA EL PISO 7mo INCLUSIVE SON TODOS DEPTOS DE 2 AMBIENTES CON BALCÒN.

¡CONSULTÀ LOS VALORES, DISPOSICIÒN, MTS CUB Y TOTALES DE CADA UNIDAD EN LA ÙLTIMA IMÀGEN DE LA PUBLICACIÒN!

COMPRÁ A VALORES MUY CONVENIENTES PARA USO PERSONAL O INVERSIÒN.

LLEVAN UN 20% MENOS DE LOS VALORES REALES.
HAY VARIAS FORMAS DE PAGO ADAPTABLES A TUS NECESIDADES.

Edificio de 8 pisos con unidades de 1, 2 y 3 ambientes, todas con BALCÒN. Ubicación privilegiada ARAOZ Y JUFRE, a 200 mts. de AVENIDA CORDOBA Y SCALABRINI ORTIZ.. Amenities: Laundry – Parrilla – S.U.M. – Solarium.

Las unidades se han proyectado y se entregaran con el siguiente equipamiento:
Carpinterías de fachadas en aluminio anodizado natural o color, con DVH para aislamiento acústico y/o térmico.
Agua Caliente Central por caldera.
Calefacción por piso radiante por caldera individual
Aire acondicionado mediante equipos individuales, uno por cada unidad instalados.
Ascensor multivoltaje con cabina y puertas de acero inoxidable en Planta baja.
Puertas de entrada a cada unidad y puertas interiores revestidas en madera natural lustre semimate de 2,30 mts de altura.
Porcellanato en baños y cocinas
Muebles bajos en cocina, cocina completa a gas en cada unidad con horno.
Mesadas de mármol beige tipo New Age o similar en baños y cocinas.
Artefactos sanitarios marca Ferrum, Rocca o similar
Griferías marca FV, Piazza o similar.
Hall de Entrada con carpinterías de acero inoxidable, revestimiento de mármol y/o madera.
Bicicletero.
Espejos en baños
Portero visor con cámara incorporada, monitor de TV en cada departamento.

Se deja constancia que las características, medidas y superficies consignadas son aproximadas, sujetas a verificación y/o ajuste.

Fotos de carácter no contractual.

Se puede Financiar 30%!!!

SE TOMA PROPIEDAD EN PARTE DE PAGO, PUEDE SER INFERIOR O SUPERIOR!!!!

Para los casos de alquiler de vivienda, el monto máximo de comisión que se le puede requerir a los propietarios será el equivalente al cuatro con quince centésimos por ciento (4,15%) del valor total del respectivo contrato. Se encuentra prohibido cobrar a los inquilinos que sean personas físicas comisiones inmobiliarias y gastos de gestoría de informes.

TASACIONES EN EL DIA

DENVER PROPIEDADES – CUCICBA – Mat. No 7568

DENVER PROPIEDADES

Dirección

Visión general

  • ID Propiedad 5381513
  • Precio u$s 138.000
  • Tipo de propiedad
  • Estado de la propiedad ,
  • Habitaciones 2
  • Dormitorios 0
  • Baños 1
  • Año de construcción 0
  • Superficie 0 m2
  • Área del terreno 40 m2
  • Garages 0